Trong bài viết này, BKC gửi đến quý khách hàng quy trình thiết kế hệ thống điều hòa trung tâm.

Tại sao cần thiết kế hệ thống điều hòa trung tâm?
Thiết kế điều hòa trung tâm là phần bắt buộc khi lựa chọn sẽ lắp đặt loại máy lạnh này. Bởi lẽ đây là dạng điều hòa cần hệ thống kết nối phức tạp và tinh vi, cần kết hợp với các hệ thống khác để tạo lên một mạng lưới kết nối gọn gàng, tiết kiệm, dễ dàng bảo trì khi cần thiết. Vì vậy, để thiết kế hệ thống này không chỉ cần hiểu rõ nguyên lý mà còn phải có những am hiểu về kiến trúc, nội thất.
Sau các bước khảo sát, quá trình thiết kế hệ thống điều hòa trung tâm thường được các kỹ sư tiến hành theo 4 giai đoạn:
- Tính công suất lạnh cho các khu vực, các phòng
- Lựa chọn sơ bộ dàn nóng, kiểu dàn lạnh phù hợp với công suất và đặc tính công trình
- Nhập thông số vào phần mềm chuyên dụng của các hãng để tính chọn máy lạnh, bộ chia gas, vẽ sơ đồ nguyên lý,...
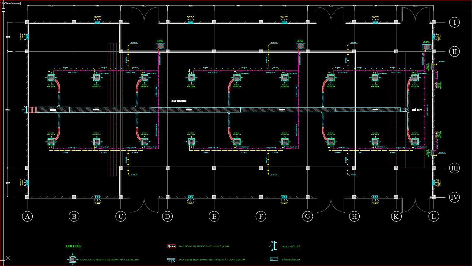
- Lên sơ đồ lắp đặt và phương án bố trí cụ thể hệ thống

Quy trình thiết kế hệ thống điều hòa trung tâm
Thiết kế hệ thống điều hòa trung tâm được thực hiện theo các bước sau:
Tính công suất lạnh của từng phòng
Đây là một quá trình cần nhiều kỹ năng và kinh nghiệm thực tế. Việc tính công suất lạnh của từng phòng thường được nhiều người áp dụng theo 2 phương pháp. Tính theo hệ số kinh nghiệm và tính bằng phần mềm tải lạnh.
Để xác định công suất lạnh phù hợp, quý khách cần căn cứ vào mục đích sử dụng để xác định công suất lạnh tương đối chuẩn xác. Đối với những không gian có nhiệt lượng cao như nhà bếp cần tính bù tải lạnh. Tương tự với phòng khách sẽ tính tải nhiệt cao hơn phòng ngủ.
Tính công suất lạnh cho không gian bao gồm các công việc sau:
-
Xác định các dự liệu về xây dựng để tính toán công suất lạnh
-
Xác định số liệu ban đầu ( khí hậu ngoài nhà, vi khí hậu trong nhằm cấp điều hòa)
-
Tính cân bằng nhiệt ẩm, xác định công suất lạnh yêu cầu của từng phòng điều hòa (để định hướng chọn dàn lạnh); tính toán hệ thống thông gió tươi và phân phối gió
-
Xác định công suất lạnh của từng khu vực (để định hướng chọn dàn nóng )
Chọn kiểu dàn lạnh và dàn nóng phù hợp với mặt bằng
Lựa chọn kiểu dàn nóng và dàn lạnh cần dựa vào các yếu tố như mục đích sử dụng của người sử dụng. Tùy thuộc vào các yêu cầu về thẩm mỹ, tiềm lực tài chính. Các kiểu dàn lạnh khác nhau về kiểu dáng sẽ có mức giá thành khác nhau.
-
Đối với những căn biệt thự hay trung tâm thương mại cao cấp thường sử dụng kiểu âm trần nối ống gió.
-
Văn phòng hạng B, C có thể chọn dùng kiểu giấu trần nối ống gió đơn giản hoặc âm trần Cassette và treo tường
-
Những công trình công cộng như bệnh viện, trường học,.. Có thể dùng các kiểu dàn lạnh áp trần hay giấu trần tùy theo bố trí của mỗi không gian.
+ Chọn dàn lạnh định hướng cho từng phòng
+ Chọn dàn nóng sơ bộ cho từng tầng, từng khu vực,…
+ Thiết kế vị trí lắp đặt, đường ống ga (cỡ ống, refnet, header, t..). Xác định độ dài của đường ống ga, độ cao chênh lệnh.
Tính toán các hệ số a1 ÷ a2 và hiệu chỉnh năng suất lạnh
Kiểm tra năng suất lạnh (nếu đạt tiếp tục bước 5).
Nếu như không đạt quay trở lại bước 2
Tính toán các dàn nóng tiếp theo
Tính toán các dàn nóng tiếp theo cho các khu vực điều hòa khác cho đến dàn nóng cuối cùng của tòa nhà.
Thiết kế hệ thống điều khiển
+ Phương pháp nối dây điều khiển
+ Mô tả các thiết bị
Thiết kế hệ thống điện động lực
Sau khi hoàn tất các bước, quá trình tính toán thiết hệ thống điều hòa không khí VRV được kết thúc.

Trên đây là một số chia sẻ về quy trình thiết kế hệ thống điều hòa trung tâm, khách hàng có nhu cầu xin vui lòng liên hệ BKC để nhận tư vấn cụ thể.
Theo dõi blog của BKC để biết thêm những thông tin hữu ích.
3 lý do nên trở thành đối tác của BKC Groups
Đội ngũ chuyên nghiệp
Đồng hành phát triển bền vững
Tận tâm - Thấu hiểu - Đáng tin cậy
Thông tin chi tiết vui lòng liên hệ trực tiếp:
BKC Groups
Head Office: Số 31 Nguyễn Như Uyên, Yên Hòa, Cầu Giấy, Hà Nội
Chi nhánh TP.HCM: 361 Phạm Văn Bạch, phường 15, quận Tân Bình
Điện thoại liên hệ: 0901775188 (KD Phân phối) / 0904175538 (KD Dự án) (Hà Nội) - 0975 204 879 (TP. Hồ Chí Minh) – 0975 204 879(Hotline 24/7)
Email: support@bachkhoahn.vn
Fanpage: https://www.facebook.com/bkcgroups/